Plac Hallera - Namysłowska 4 pokoje 60 m2

Mieszkanie na sprzedaż
779 000,00 PLN , Pow. 61,54 m2
Drukuj ofertę
Drukuj ofertę
Typ nieruchomości:
Mieszkanie
Powierzchnia:
61,54 m2
Typ transakcji:
sprzedaż
Liczba pokoi:
4
Lokalizacja:
Warszawa Praga-Północ , Namysłowska
Rok budowy:
1974
Piętro:
4 na 10
Numer oferty:
962097
Cena za m2:
12 658,43 PLN
Uno Properties poleca:

Atrakcyjna oferta poniżej 13000 zł z m2 
KW, 4 pokoje, loggia 8 m, winda, rama H,10  minut metro, starówka, Wisła, ZOO, 200 m plac Hallera  

Mieszkanie 4-pokojowe w bloku typu rama H (to nie wielka płyta, lecz solidna konstrukcja żelbetowa). Lokal bardzo widny i ustawny, z oknami wychodzącymi na trzy strony świata. Układ mieszkania jest niezwykle elastyczny - brak ścian nośnych daje szerokie możliwości aranżacyjne.
Metro 10 minut na pieszo, plaża nad Wisła 10 minut na pieszo, Starówka 10 minut tramwajem 
Powierzchnia:

użytkowa: 61,54 m²

w księdze wieczystej: 60,42 m²
(wspólnota planuje korektę powierzchni w KW do wartości użytkowych)

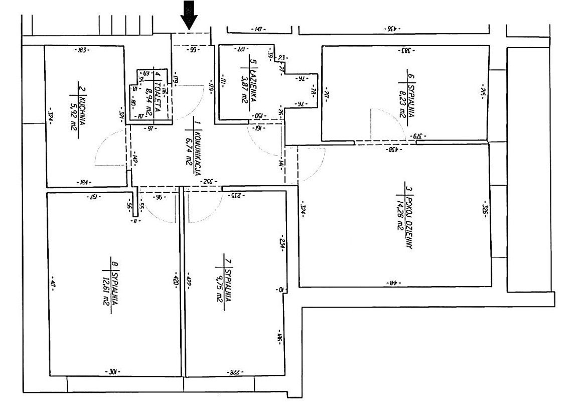
Rozkład pomieszczeń:
Salon - 14,28 m² z przejściem do sypialni 8,23 m²
Sypialnia 2 - 9,75 m²
Sypialnia 3 - 12,61 m²
Kuchnia - 5,92 m²
Łazienka - 3,07 m²
WC - 0,97 m²
Korytarz - 6,74 m²
Balkon - ok. 8 m² (długość 6 m, biegnący wzdłuż mieszkania)
Standard budynku i instalacje:

Blok monitorowany, po wszystkich najważniejszych remontach,
Windy wymienione w 2012 r.,
Piony wodno-kanalizacyjne i instalacja elektryczna po wymianie,
Światłowód UPC oraz Vectra,
Możliwość podłączenia prądu 3-fazowego,
Rowerownia w budynku, możliwość podnajmu na piętrze schowka za około 50 zł miesięcznie 
Wspólnota planuje instalację fotowoltaiki na dachu, co w przyszłości obniży koszty eksploatacji.

Możliwości aranżacyjne i inwestycyjne:
Do ogłoszenia załączamy aktualny plan mieszkania oraz przykładowe propozycje aranżacji.
W cenie mieszkania: projekt podstawowy oraz konsultacje z projektantem wnętrz.
Współpracujemy z doświadczonym biurem projektowym i ekipą remontową - pomagamy zarówno w wycenie, jak i realizacji remontu.
Idealna propozycja inwestycyjna: wynajem czterech pokoi to przychód rzędu ok. 7000 zł brutto miesięcznie, co daje ROI na poziomie ok. 8% (po odjęciu kosztów czynszu i eksploatacji).
Rewitalizacja basenów otwartych na Namysłowskiej !!! a la Moczydło 

Atuty lokalizacji i komunikacji:

Bardzo dobra komunikacja - w pobliżu liczne przystanki tramwajowe i autobusowe, szybki dojazd do centrum Warszawy oraz innych dzielnic.
Bliskość terenów zielonych i miejsc do rekreacji (parki, ścieżki rowerowe).
W okolicy pełna infrastruktura - sklepy, szkoły, przedszkola, przychodnie oraz punkty usługowe.
Dogodna lokalizacja zarówno do zamieszkania na stałe, jak i pod inwestycję w wynajem.



,,Właścicielem niniejszego ogłoszenia oraz jego elementów jest Uno Properties Sp. z o.o. lub podmioty współpracujące. Wszelkie prawa zastrzeżone. Zabrania się kopiowania, rozpowszechniania oraz wykorzystywania tych materiałów w sposób wykraczający poza dozwolony użytek określony w ustawie z dnia 4 lutego 1994 r. o prawie autorskim i prawach pokrewnych (Dz. U. 1994, nr 24, poz. 83 z późn. zm.) bez uprzedniej, pisemnej zgody Uno Properties Sp. z o.o. lub jej partnerów. Naruszenie tych zasad może skutkować odpowiedzialnością cywilną i karną.

Ponadto, niniejsze materiały stanowią tajemnicę przedsiębiorstwa Uno Properties Sp. z o.o. oraz jej partnerów w rozumieniu ustawy z dnia 16 kwietnia 1993 r. o zwalczaniu nieuczciwej konkurencji (Dz. U. z 2003 r., Nr 153, poz. 1503 z późn. zm.).
Informacje zawarte w ogłoszeniu mają charakter wyłącznie informacyjny i nie stanowią oferty w rozumieniu Kodeksu Cywilnego.''
Adres strony www: https:// NULL
Nieprawidłowy adres E-mail